Mar, 2023
Projet d’école : Création d’une maison sur un terrain en pente et mise en œuvre d’un permis de construire.
School project: Creation of a house on sloping land and application of a building permit.








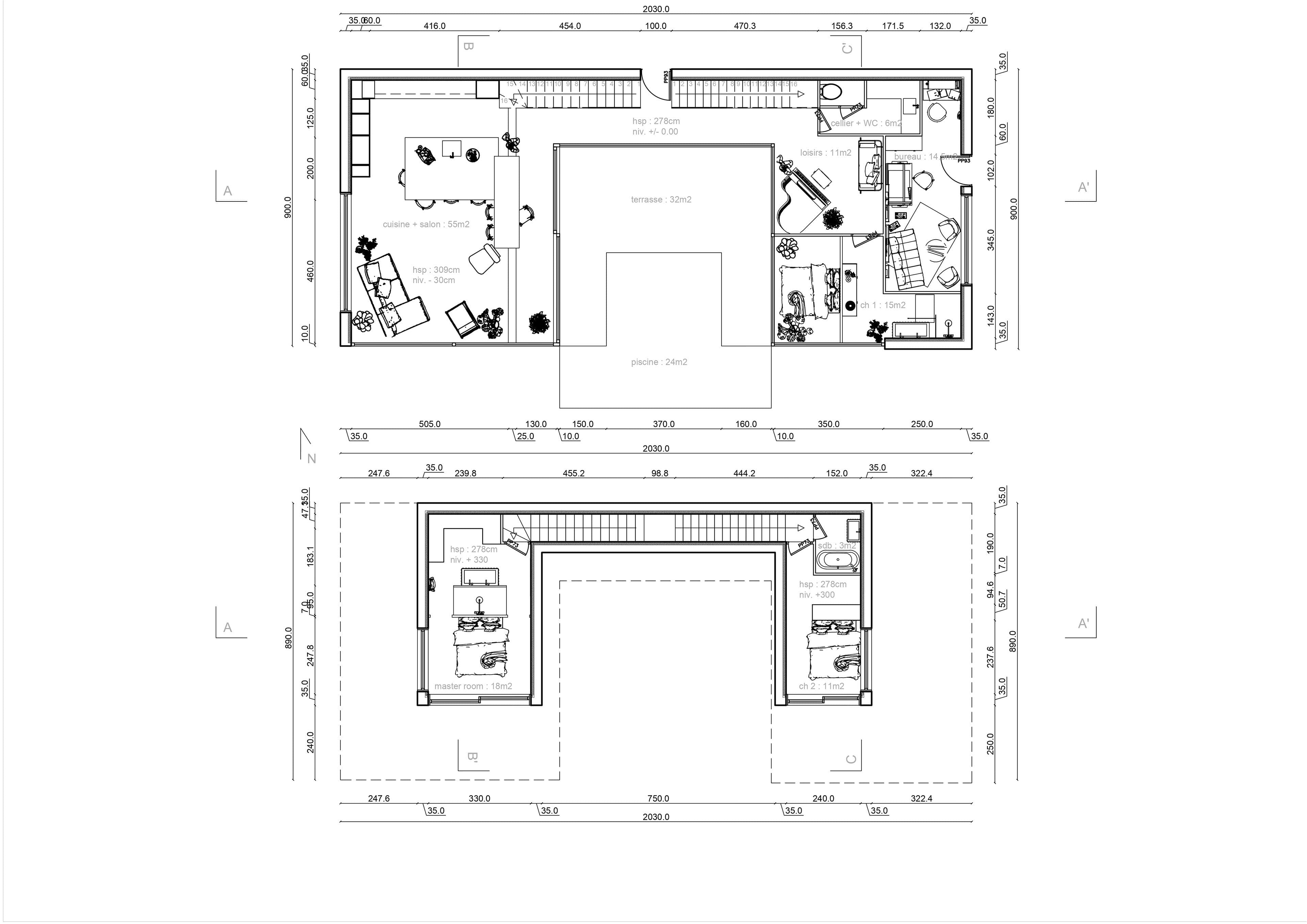
La maison devait être créée en fonction de tous les critères inscrits sur le PLU de la ville. Le PLU ajoute beaucoup de contraintes à celles déjà demandées par les clients. La pente du terrain était un désavantage colossal ce qui a rendu de le travail plus difficile.
The house had to be created based on all the criteria listed on the local urbanization plan. This one adds many constraints to those already requested by customers. The slope of the land was a colossal disadvantage which made the work more difficult.



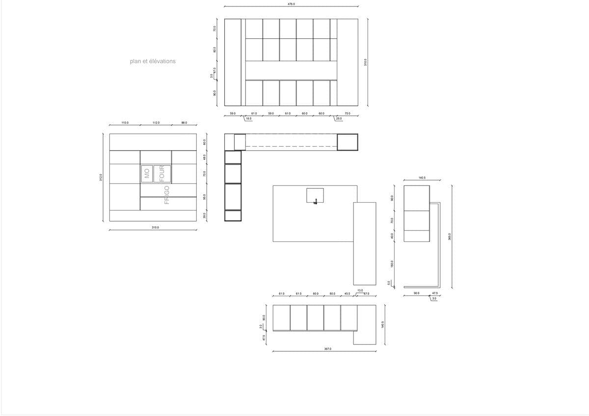
Du plan de masse aux détails de la cuisine, j'ai pu découvrir l'importance de la précision sur chaque document transmis à la mairie pour la validation du permis de construire.
From the floor plan to the details of the kitchen, I was able to discover the importance of precision on each document sent to the town hall for validation of the building permit.



Future is typing...
© 2025 Jo. All rights reserved.